---------------------
BSSD Senior Capstone Project​​​​​​​
--------------------------------------------------------------------
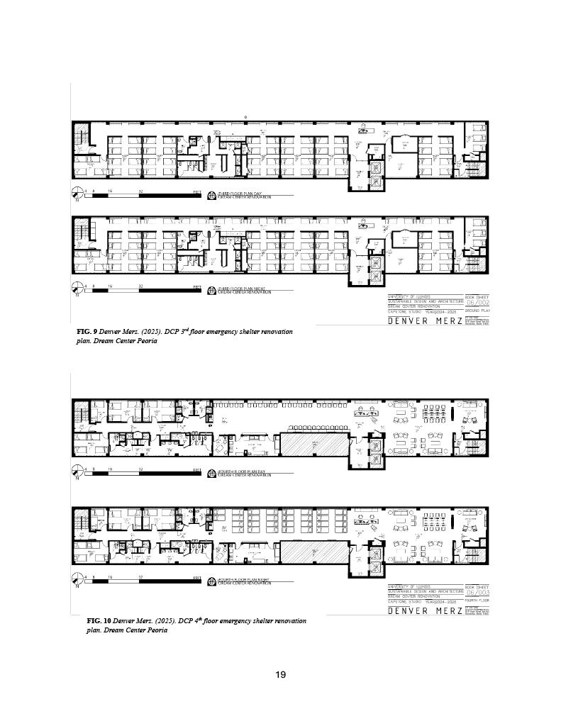
DREAM CENTER PEORIA 
EMERGENCY 24HR SHELTER RENOVATION
As a part of my B.S. in Sustainable Design, I began a yearlong research design project aimed at solving or mitigating a climate related problem. My capstone project focused on a localized attempt to improve Dream Center Peoria's emergency shelter occupancy without sacrificing the wellbeing of their existing guests. This initiative began after research showed that in the coming years and decades displacement as well as extreme weather occurrences would become more frequent, extreme, and dangerous. My project focused on identifying ways to improve occupancy in an existing shelter utilizing dignified, comfortable, and empathetic design solutions. I believe that I gained insight on creating transitional systems that allow increased occupancy without sacrificing quality of stay for guests. This project channeled my former experiences as a homeless youth and as such I focused on a shelter that I had previously occupied myself.
-------------------------------
RENDERS
Day renders are shown on the left side below, with emergency shelter night configuration shown on the right.

You may also like

Back to Top